Consegna cantiere
In consegna
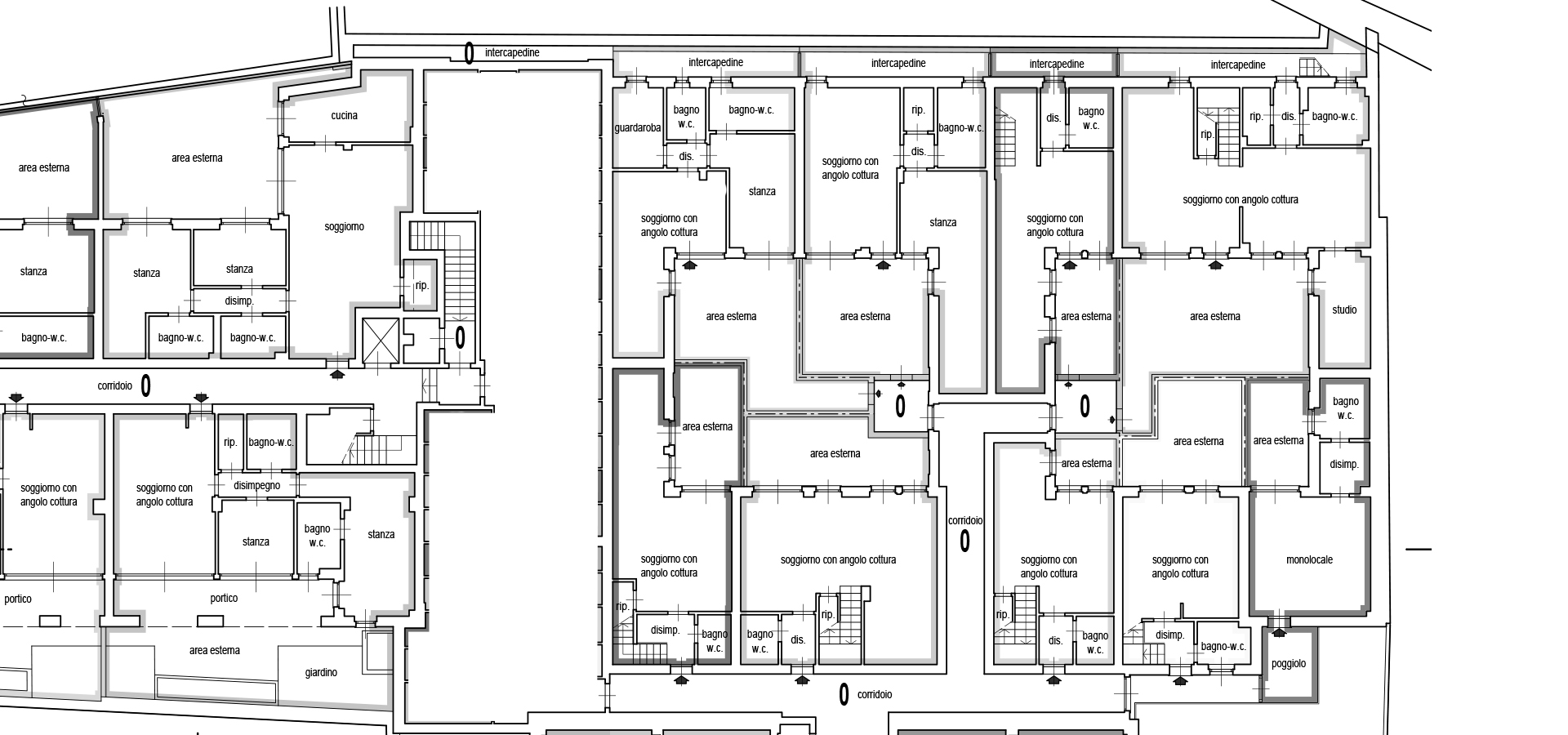
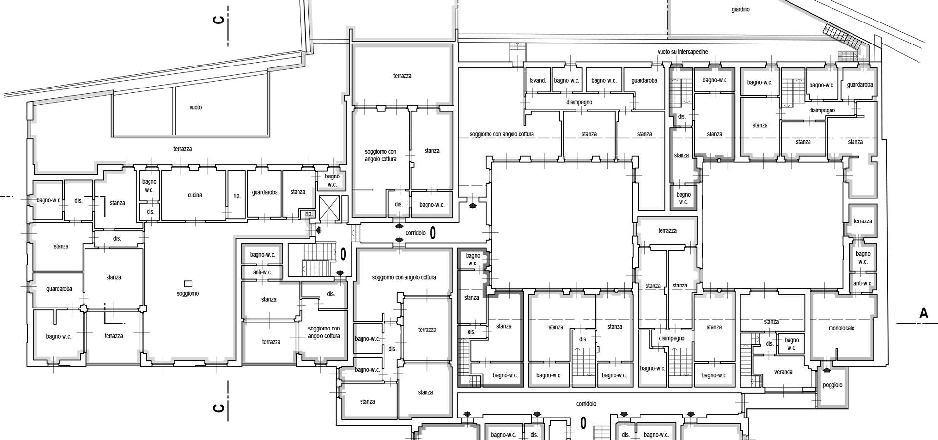
Numero Alloggi
15
Vedi posizione del cantiere
Via Bonafata 13, Trieste
Capitolato
Scarica